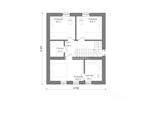
Код объекта: 1099566. д.Чижово, Собинский район, поселок Лесогорье. Ищете просторный и уютный дом для постоянного проживания? Тогда это предложение именно для вас! Продается современный дом - барнхаус 114квм на видовом участке 11,5соток. Дом в двух этажах, 2024 года постройки. Практичная планировка дома дает возможность разместиться большой семье. В доме 5 светлых комнат: 3 комнаты на 2 этаже, 2 комнаты на 1 этаже, 2 санузла - по одному на каждом этаже. С двух сторон дома заложена веранда. Дом подходит для круглогодичного проживания, но внутри нет отделки, поэтому новому владельцу предстоит ремонт на свой вкус. Технические характеристики: каркасный дом с деревянными перекрытиями, утеплитель стен "Технониколь", отделка фасада - окрашенная лиственница и металлический клик-фальц, в доме заложены гильзы под канализацию и водопровод. Дом построен на видовом участке, расположенном на возвышенности. Из панорамных окон дома открывается прекрасный вид на леса и поля с одной стороны и на смешенный лес с другой. Участок правильной геометрической формы, 25м шириной по фасаду, с выходом в лес. На участке растут молодые сосны. Тихое и уютное место как для отдыха так и для жизни. Удобная транспортная доступность: 20 км до Владимира, 15км до выезда на скоростную магистраль М-12 на Москву. Не упустите возможность стать владельцем прекрасного дома в живописном месте! Мы гарантируем безопасную сделку и юридическую поддержку нашим клиентам. Поможем одобрить ипотеку с пониженной ставкой.















































































