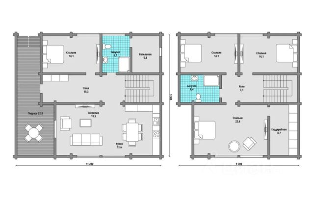
Продается НОВЫЙ! комфортный дом-дача в 80 км от МКАД по Ярославскому шоссе, в надежно охраняемом коттеджном поселке ДПК Лесные озёра с развитой инфраструктурой (четыре озера, храм, два пляжа, рыбалка, ресторан, два магазина, пекарня, детский клуб с большим количеством секций и кружков, футбольное и баскетбольное поля, теннисный корт хоккейная коробка, зимняя горка, две детские площадки). Дом 207,7 кв.м. из клееного бруса с земельным участком 14,2 соток с выходом в лес. Просторная и светлая кухня-гостиная со вторым светом, с выходом на террасу. Спальня на 1 этаже и 3 просторные спальни на 2 этаже, 2 санузла. Территория огорожена забором. На территории вековые ели. За забором красивый лес. Магистральный газ, отопление, канализация разведены по дому. В поселке работает быстрый интернет. В 5 минутах ходьбы от дома находится озеро. Один собственник. Документы для сделки готовы. Без обременений. К агентам просьба не беспокоить.















































































