


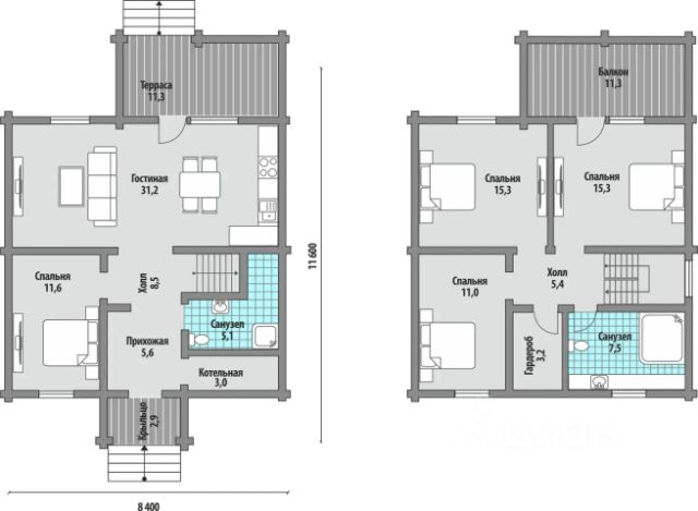
90 км от МКАД, Ярославское шоссе. Продаётся жилой дом со всеми удобствами для круглогодичного проживания, брус, двух-этажный, площадью 145 кв. м, на участке 10 соток, 2016 года постройки в дачном посёлке Полиносово, на границе Московской и Владимирской областей, вблизи железнодорожной станции Арсаки. Планировка дома: коридор, кухня, гостиная, санузел, котельная, терраса, холл с лестницей на второй этаж. Коммуникации: водоснабжение от индивидуальной скважины, разведено по дому, горячее водоснабжение - газовый котел. Отопление от газового настенного котла, газгодьдер, вдоль участка магистральный газ. Оборудован санузел - душевой бокс, унитаз, раковина, на двух этажах. Септик заводской - Юнилос Астра. Электричество 15 кВт, 3 фазы, 380 В, разведено. Интернет от местного провайдера, оптоволокно с телевидением и видеонаблюдением. Дом находится в огороженном и охраняемом коттеджном посёлке, въезд - ворота с пульта управления, видеонаблюдение. Посёлок окружен живописными лесными местами с изобилием грибов и ягод, свежайший лесной воздух с пением лесных птиц. Отличное место как для круглогодичного проживания, так и для дачи. В шаговой доступности 2 магазина, рядом сетевые, а также ж/д станция Арсаки - прямое сообщение с Москвой (Ярославский вокзал). Показ в удобное для Вас время. Рассмотрим предложения с ипотекой и материнским капиталом.











































































































































