


96 425 ₽/м²
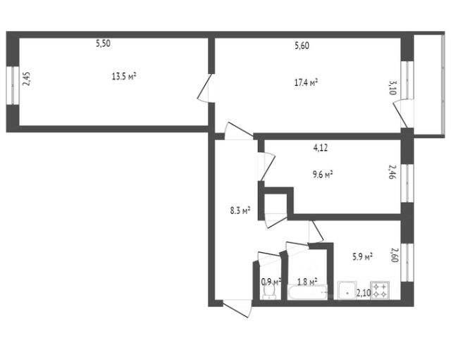
Евротрёшка 66,4 м² в 6 подъезде ЖК "Парадный2 в Славном" Светлая и практичная квартира с двумя жилыми комнатами 13,2 и 12,5 м², раздельным санузлом и вместительной кухнейгостиной 21,3 м², где удобно и готовить, и принимать гостей. Вид из окон открывается на пешеходный бульвар — уютная и тихая перспектива каждый день. Это удобный формат для семьи, которая ценит комфорт, простор и красивую городскую среду. ЖК "Парадный2 в Славном" (аллея Победителей, 3) — 5этажный кирпичный дом с пристроенной газовой котельной на центральном бульваре микрорайона Славный. Дом состоит из 13 подъездов. Две поворотные секции создают динамичный силуэт и открывают панорамные виды из окон. Сквозной арочный проход соединяет дом с пешеходной сетью района, а входы в подъезды вынесены во двор, что обеспечивает тишину и приватность. В каждом подъезде — колясочные и широкие лестничные марши. Все подъезды сдаются с полноценной отделкой, а скатная кровля придаёт дому завершённый и надёжный облик. Квартира передаётся со строительной отделкой: штукатурка стен, полусухая стяжка пола, ПВХокна с подоконниками и откосами, входная дверь, радиаторы отопления и электророзетка под плиту, стояки холодной воды с поквартирными счётчиками (без внутренней разводки и сантехники). Возможные способы покупки: рассрочка от застройщика, ипотека, обмен старой квартиры на новую по программе трейдин, материнский капитал. Срок ввода дома в эксплуатацию — 2 квартал 2029 года. Застройщик — ООО Специализированный застройщик СК Континент. Проектная декларация — наш.дом.рф. Стоимость указана с базовой скидкой при полной оплате.














































































































