


114 123 ₽/м²
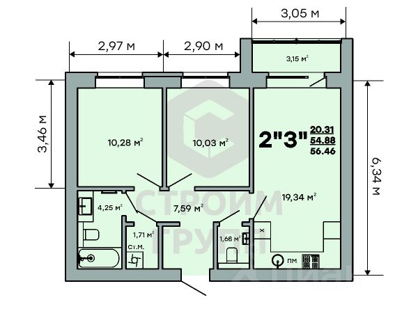
Особенностью этой двухкомнатной квартиры является объединенная с кухней гостиная общей площадью 21 квадратный метр! Помещение разделено на зоны для приготовления пищи, где можно установить кухонный гарнитур и большой обеденный стол для всей семьи, и ТВ-зону, где поместится хороший просторный диван. Из кухни имеется выход на просторную лоджию площадью 3,3 квадратных метра. При сдаче дома лоджия будет остеклена!При такой планировке совмещенной кухни и гостиной, неоспоримым преимуществом этой двухкомнатной квартиры являются две отдельные комнаты. Одну из них, площадью 11,3 квадратных метра, можно использовать под спальную комнату, где можно установить широкую кровать или раскладной диван и вместительный шкаф для одежды. Вторую комнату, площадью 11,5 квадратных метров, можно использовать в качестве детской или кабинета. Интересным и полезным решением в этой двухкомнатной квартире стали два санузла! Один - полноценный, площадью 4,6 квадратных метра, где можно установить раковину, ванну и стиральную машину, а второй - небольшой, площадью 1,6 квадратных метра, с отдельным унитазом. Для семьи с детьми - очень актуальное решение. Также рядом с большим санузлом есть отдельное помещение площадью 1,6 квадратных метра, которую можно использовать в качестве постирочной комнаты или гардероба.Прихожая (площадью почти 8 кв. м.) является непроходной. Изолированность прихожей позволяет держать в чистоте остальные помещения квартиры грязь с улицы не будет разноситься по комнатам. Доступны такие способы покупки, как наличные, ипотека от ведущих банков (в т.ч. все программы с субсидиями и господдержка). В цену квартиры сразу входит предчистовая отделка от застройщика с гарантией на все работы!



















































































































