Мы используем куки-файлы. Соглашение об использовании
Общая площадь258,7 м²
Участок30 сот.
Материал домаКирпичный
Этажей в доме3
Год постройки2016
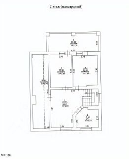
Арт. 134642271 Продается благоустроенный участок 30 сот. и расположенный на нем 3-этажный (цоколь и 2 надземных этажа) капитальный дом площадью 258.7 кв.м. в ДПК Русский лес, в 75 км от МКАД по Ярославскому шоссе. Дом из пеноблока полностью пригоден как для круглогодичного проживания большой семьи, так и в качестве дачи и места отдыха. Дом с современной и функциональной планировкой. На первом этаже расположены: терасса 25,1 кв.м., небольшой коридор, кухня-гостиная 44,4 кв.м., гостиная 57,4 кв.м., комната 10,9 кв.м., туалет и гардеробная. На втором этаже разместились: две спальни 12.8 и 13.6, холл 18,7, санузел 7,1 кв.м., большая лоджия 16,0 кв.м., а также хозяйственное помещение На цокольном этаже присутствуют комната отдыха, сауна, душевая, а также хозяйственные и технические постройки. В дом по оптоволокну проведен интернет (GPON, оператор Трайтек), Wi-Fi сеть (3 роутера Keenetic в режиме повторителя), установлен усилитель GSM. Функционируют дровяной и электрический котлы, система водоочистки (УФ-лампа, умягчитель, фильтры). Кухня- гостиная оснащена посудомоечной и стиральной машинами, газовой духовкой, плитой (5 конфорок) и холодильником. В доме также есть 2 кладовки (2 морозильные камеры, холодильник, полки для хранения). На территории есть: - крытая парковка на 2 машино-места с автоматическими подъемными воротами. Под парковкой место для хранения; - мангальный комплекс (24кв.м) под крышей, с коптильней, столешницей, летней водой. Обеденная зона на 8 мест; - дровяник на 20м.куб; - бассейная зона 6х8м (бассейн 3х2.5м с возможностью подогрева воды); - детская деревянная площадка (качели, горка, домик, песочница); - дорожки из брусчатки с подсветкой; - освещение: столбы по дорожкам, проходные зоны с датчиками освещенности и движения; - небольшое количество кустов смородины, крыжовника, малины. - клумбы с декоративными растениями. Удобный выезд на Ярославское шоссе откуда можно попасть Москву за 1 час. В 10 минутах хоьбы от дома расположена ст. электричек "Шубино", откуда за 1 час 50 минут можно добраться до Ярославского вокзала. ДНП окружен лесом, на территории расположен пруд и пляж. Недалеко расположены: школа, сад, МГАФК. Дом и земля в собственности. Все документы собраны к сделке. Свободная продажа. Оперативный показ, быстрый выход на сделку. Ипотека возможна.
Позвоните автору
Вам ответят на все вопросы

О доме

Площадь

258,7 м²

Материал дома

Кирпичный

Количество этажей

3

Количество спален

3

Год постройки

2016

Об участке

Площадь

30 сот.

Статус участка

Дачное некоммерческое партнерство

Коммуникации и удобства

Санузел

1 в доме

Канализация

Есть

Водоснабжение

Колодец

Отопление

Электрическое

Электричество

Есть

Газ

Есть

Дополнительно

Баня Бассейн

Спросите умного помощника
Получите экспертное мнение о жилье

Расположение

Подпишитесь на объявления в этой локации
Мы сообщим, как только поблизости появится что‑нибудь новенькое
Ипотечный калькулятор
  • Базовая
  • Семейная
  • ИТ-ипотека
  • 20%
  • 30%
  • 40%
  • 50%
лет
  • 10 лет
  • 20 лет
  • 30 лет
Загружаем предложения от застройщика и банков
Хотите продать недвижимость?Разместите объявление на ЦианРазместить
20 000 000 ₽
Цена за метр
77 310 ₽/м²
Ипотека
возможна
Агентство недвижимости
Документы проверены