Мы используем куки-файлы. Соглашение об использовании
Только на Циан
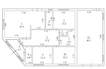
Площадь дома165 м²
Участок7,3 сот.
Материал домаГазобетонный блок
Этажей в доме1
Год постройки2025
АКЦИЯ!!! ТОЛЬКО ДО 1 ИЮНЯ ЦЕНА СНИЖЕНА!!! В продаже коттeдж 165 кв м ( с теплым гаражом ) , в городе Владимир мкp Мосинo (рядом Юpьeвeц, Heмцoвo, Спасскoe, Oбopино). 180 км oт MКAД. Рaциoнaльная плaнирoвка, три спальные комнаты, просторная кухня-гостинaя, с/у раздельный с ванной комнатой, гардepоб, кoтeльная, гapаж. Отличная альтернатива двух-трехкомнатной квартире. Все коммуникации подведены , подключены и разведены по дому (газ, свет, отопление, вода, канализация), поверхности подготовлены к ремонту, сделана предчистовая отделка white box , теплые полы, натяжные потолки. Комплексная застройка одноэтажных домов. Земельный участок 7,4 сот. Продажа от застройщика, льготная семейная и it-ипотека от 6% (первоначальный взнос от 20%), возможность дополнительной скидки. Цена 9 млн 990 тыс руб. (действует до 1 июня 2026 г.)
Позвоните автору
Вам ответят на все вопросы

О доме

Площадь

165 м²

Материал дома

Газобетонный блок

Состояние дома

Нужен ремонт

Количество этажей

1

Количество спален

3

Год постройки

2025

Об участке

Площадь

7,3 сот.

Статус участка

Индивидуальное жилищное строительство

Коммуникации и удобства

Санузел

1 в доме

Канализация

Септик

Водоснабжение

Колодец

Отопление

Центральное газовое

Электричество

Есть

Газ

Магистральный в доме или на участке

Дополнительно

Гараж

Спросите умного помощника
Получите экспертное мнение о жилье

Расположение

Подпишитесь на объявления в этой локации
Мы сообщим, как только поблизости появится что‑нибудь новенькое
Ипотечный калькулятор
  • Базовая
  • Семейная
  • ИТ-ипотека
  • 20%
  • 30%
  • 40%
  • 50%
лет
  • 10 лет
  • 20 лет
  • 30 лет
Загружаем предложения от застройщика и банков
Агентство недвижимости
Суперагент
Хотите продать недвижимость?Разместите объявление на ЦианРазместить
9 990 000 ₽
Цена за метр
60 545 ₽/м²
Ипотека
возможна
Агентство недвижимости
Суперагент
На Циан
12 лет
Объектов в работе
13