Мы используем куки-файлы. Соглашение об использовании
Только на Циан
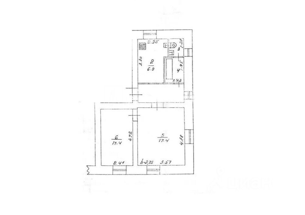
Общая площадь45,4 м²
Жилая площадь28,8 м²
Площадь кухни7 м²
Этаж1 из 2
Год постройки1956
Арт. 134960126 Продается двухкомнатная квартира по адресу: Малыгино, улица Юбилейная, дом 52. Это уникальное предложение для тех, кто ищет просторное и функциональное пространство с максимальным потенциалом для перепланировки и создания эксклюзивного дизайна. Квартира расположена на углу дома, имеет проходные комнаты и просторную прихожую, полностью готова к капитальному ремонту. Особенности квартиры, ждущей вашего преображения: * Угловое расположение: Обеспечивает дополнительное естественное освещение, что делает помещения более светлыми и открывает возможности для оригинальных дизайнерских решений. * Просторная прихожая: Дарит ощущение свободы уже с порога и позволяет организовать вместительные системы хранения или уютную welcome-зону, что редкость для типовых планировок. * Проходные комнаты: Идеальный вариант для тех, кто планирует переформатировать пространство под студию и создать современную, открытую планировку. Это ваш чистый лист для воплощения самых смелых дизайнерских идей без ограничений. * Полностью под ремонт: Вы получаете возможность создать интерьер своей мечты с нуля, контролируя каждый этап и выбирая материалы по своему вкусу и бюджету. Никаких компромиссов с чужим ремонтом! Преимущества расположения и окружения: * Отличный двор: Продуманная территория создает комфортную и безопасную среду для жизни и отдыха. * Дружные соседи: Формируют приятную атмосферу и способствуют созданию настоящего сообщества, где каждый чувствует себя как дома. Это идеальный объект для тех, кто хочет инвестировать в недвижимость с большим потенциалом роста стоимости после качественного ремонта, или для семьи, мечтающей о доме, спроектированном специально под их нужды, в окружении единомышленников.
Позвоните автору
Вам ответят на все вопросы

О квартире

Тип жилья

Вторичка

Общая площадь

45,4 м²

Жилая площадь

28,8 м²

Площадь кухни

7 м²

Высота потолков

2,75 м

Санузел

1 совмещенный

Вид из окон

На улицу и двор

Ремонт

Без ремонта

О доме

Год постройки

1956

Тип дома

Кирпичный

Тип перекрытий

Железобетонные

Подъезды

2

Парковка

Наземная

Отопление

Центральное

Аварийность

Нет

Газоснабжение

Центральное

Спросите умного помощника
Получите экспертное мнение о жилье

Расположение

Ипотечный калькулятор
  • Базовая
  • Семейная
  • ИТ-ипотека
  • 20%
  • 30%
  • 40%
  • 50%
лет
  • 10 лет
  • 20 лет
  • 30 лет
Загружаем предложения от застройщика и банков
Помощь риелтора
Проверенный риелтор поможет купить или продать квартиру
1 500 000 ₽
Цена за метр
33 040 ₽/м²
Условия сделки
свободная продажа
Ипотека
возможна
Агентство недвижимости
Документы проверены