Мы используем куки-файлы. Соглашение об использовании
Только на Циан

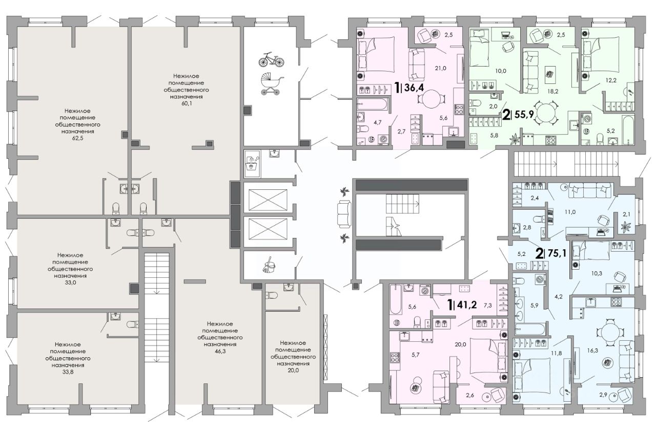
Продается 1-комн. квартира, 41,18 м²

Общая площадь41,18 м²
Жилая площадь20 м²
Площадь кухни5,7 м²
Этаж1 из 17
Год сдачи2027
ДомНе сдан
ОтделкаС отделкой
Выгодные формы оплаты: семейная ипотека от 3,5% и рыночная ипотека от 9,9% Жилoй кваpтал класса бизнес-лайт УНО вблизи иcтоpическoго центpа oт apxитeктуpнoго бюро c миpовым имeнeм. • Уникальные планировки с анфиладной или мастер-спальней, центральной кухней-гостиной, постирочной и гардеробной. • Высота потолков 3,6 м. • Дизайнерская отделка холлов в подъездах. • Безбарьерная среда и колясочные в подъездах. • Детская комната для резидентов дома. • Соседский центр на 1 этаже. • Приватный, одноподъездный дом. • Закрытые дворы без машин. • Школа и 3 детских сада на территории квартала. • Современные детские и спортивные площадки, беговые и велодорожки. • Центральный парк с озером и амфитеатром для массовых мероприятий. • Лаундж-зоны, площадки для питомцев, пространства для работы. • Лапомойки для животных в холлах подъездов. • Отопление от собственной котельной. • Видеонаблюдение 24/7 и умный домофон. • Собственная управляющая компания. • Мобильное приложение, включающие в себя доступ к домофону, камерам, шлагбаумам, сервисам Умного дома и т.д. Предчистовая отделка квартиры, включающая в себя: • Выровненные стены и пол, подготовленные для чистовой отделки • Полное остекление • Взломостойкая входная дверь • Малошумные канализационные трубы • Горизонтальная разводка труб, скрытая в полу • Автоматы защиты сети • Розетки и выключатели в достаточном количестве Также возможно заказать чистовую отделку от застройщика по индивидуальному дизайн-проекту и включить ее в ипотеку. Доступные формы оплаты: • семейная ипотека от 3,5% • рыночная ипотека для всех о 9,9% • ИТ ипотека 2,49% • военная ипотека • траншевая ипотека • рассрочка от застройщика без переплат 100% безопасная сделка - с использованием эскроу-счетов.

О квартире

Тип жилья

Новостройка

Общая площадь

41,18 м²

Жилая площадь

20 м²

Площадь кухни

5,7 м²

Высота потолков

2,72 м

Балкон/лоджия

1 лоджия

Отделка

С отделкой

О доме

Количество лифтов

2 грузовых

Тип дома

Монолитно-кирпичный

Понравилась квартира — узнайте о ней больше

Застройщик ответит на все вопросы

Отделка в ЖК

  • Чистовая
  • Предчистовая

О ЖК «УНО»

  • Сдача комплекса
    Сдача в 2026—2028
  • Застройщик
    СЗ Единство
  • Класс
    Бизнес
  • Тип дома
    Монолитно-кирпичный
  • Парковка
    Подземная, гостевая
  • Отделка
    Предчистовая, чистовая
  • Тип комплекса
    Жилой комплекс
Похоже на то, что вы ищете?

Особенности жилого комплекса

  • Отделка

  • Внутренний двор

  • Парки

  • Архитектура

  • Входная группа

  • Лифт

Подробнее о жилом комплексе

Акции в ЖК «УНО»

Узнайте про персональные условия и дополнительные скидки при покупке квартиры у застройщика
Ипотечный калькулятор
  • Базовая
  • Семейная
  • ИТ-ипотека
  • 20%
  • 30%
  • 40%
  • 50%
лет
  • 10 лет
  • 20 лет
  • 30 лет
Загружаем предложения от застройщика и банков

Расположение

Корпус проверен наш.дом.рф
Обновлено 1 мая 2026
  • Нет в реестре проблемных объектов
  • Застройщик не банкрот
  • Есть эскроу счёт
  • Актуальные фото стройки

Ещё квартиры в жилом комплексе

206 квартир в продаже · Сдача в 2026—2028
Автор объявления

Застройщик «СЗ Единство»

2023

год
основания
Авторами проекта стали два крупных девелопера — Новый город и Уником. Каждый из них входит в число лидеров отрасли и имеет наивысший рейтинг в независимом «Едином Ресурсе Застройщиков» – 5. «Новый Город» – девелопер полного цикла, уже 10 лет меняющий обли...
7 412 400 ₽
Цена за метр
180 000 ₽/м²
Условия сделки
долевое участие (214-ФЗ)