Мы используем куки-файлы. Соглашение об использовании
Площадь80 м²
Этаж1 из 2
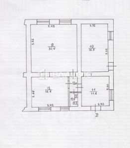
Код объекта: 2066876. Эксклюзивное офисное помещение 80 м² в центре идеально для бизнеса! Продается отличное помещение 80 м² на ул. Гражданская 1 А ваш ключ к успешному старту! Отдельный вход, хороший ремонт, выделенная парковка, имеется зона разгрузки. Готово к работе: все коммуникации для оргтехники, стабильный интернет, санузел, центральная канализация, отопление. Три отдельных кабинета, зал для переговоров, санузел. Универсальное пространство для вашего дела Офис или коворкинг: Чистое, светлое помещение с ремонтом подключите технику и работайте! Любой формат: Гибкость под ваш бизнес без доп. вложений. ЕСТЬ ВОЗМОЖНОСТЬ ВЫКУПА ВСЕГО ЗДАНИЯ Документы готовы, показ в удобное время!
lock

Войдите или зарегистрируйтесь
для просмотра информации

Просматривайте условия сделки и всю информацию об объекте
Сохраняйте фильтры в поиске и не вводите заново
Доступ к избранному с любого устройства
Неограниченное добавление в избранное
Позвоните автору
Вам ответят на все вопросы
Остались вопросы по объявлению?
Позвоните владельцу объявления и уточните необходимую информацию.
  • Инфраструктура
  • Похожие рядом
  • Год постройки1965
  • Площадь участка0 сот.
  • Общая площадь80 м²
Центральное отопление
Помощь надёжных риелторов
Риелтор партнёр Циан поможет купить или продать любую недвижимость
10 000 000 ₽
134 011 $
113 779
Цена за метр
125 000 ₽
Налог
НДС включен: 1 803 278 ₽
Агентство недвижимости
Документы проверены
Риелтор