Мы используем куки-файлы. Соглашение об использовании
Помещение свободного назначения, 1 500 м²

Продается помещение свободного назначения, 1 500 м²

Площадь1 500 м²
Этаж1 из 4
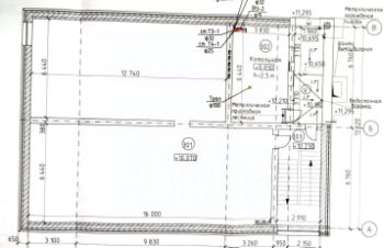
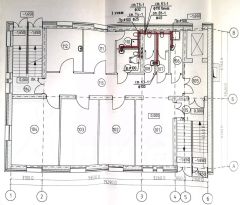
Предлагается к продаже отдельно стоящее здание на собственном земельном участке 6 соток. Возможна продажа с НДС 20%!!!!! Готовность здания 95 процентов, коммуникации все подведены, по проекту - своя газовая котельная на 3-м этаже. Здание 3 полноценных этажа, цокольный этаж с высотой потолков 3 метра, а также мансардный этаж. Площадь каждого этажа (включая мансардный) 300 кв.м., площадь всего здания 1 500 кв.м.. Имеется действующее разрешение на строительство, готовый и согласованный проект, который практически реализован. Возможно использовать под медицинскую клинику, со своим стационаром, реабилитационным залом, и т.п. Каждый этаж разбит на несколько кабинетов с прямой коридорной системой, площади кабинетов различные от 20 до 40 кв.м. В здании осталось сделать только чистовую отделку, развести по этажам инженерные сети. В здание заведено электричество 70 кВА (электрический шкаф и счетчики установлены), подключено водоснабжение и канализация, согласован и исполнен проект подключения газа. Код пользователя: 178730 Номер в базе: 9694630
lock

Войдите или зарегистрируйтесь
для просмотра информации

Просматривайте условия сделки и всю информацию об объекте
Сохраняйте фильтры в поиске и не вводите заново
Доступ к избранному с любого устройства
Неограниченное добавление в избранное
Позвоните автору
Вам ответят на все вопросы
Остались вопросы по объявлению?
Позвоните владельцу объявления и уточните необходимую информацию.
  • Инфраструктура
  • Похожие рядом
  • Общая площадь1 500 м²
Помощь надёжных риелторов
Риелтор партнёр Циан поможет купить или продать любую недвижимость
125 999 999 ₽
1 722 759 $
1 460 195
Цена за метр
84 000 ₽
Налог
НДС не включен
Агентство недвижимости
Суперагент