Мы используем куки-файлы. Соглашение об использовании

Продается коммерческая земля, 4,06 сот.

Площадь участка4,06 сот.
КатегорияУчасток поселений
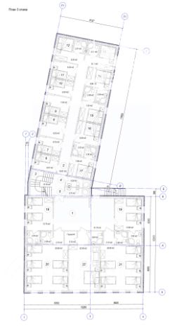
Предлагается к реализации одна из немногих свободных площадок в историческом ядре города Владимира внутри основного туристического маршрута "Золотое кольцо России" V Адрес: г. Владимир, ул. 2-я Никольская, д. 18 V Площадь участка: 4,06 сотки V Кадастровый номер: 33:22:032004:4 V Градостроительное планировочное задание (ГПЗУ) ПОЛУЧЕНО V Зона по генплану: О1 Общественно-деловая V Режим использования земли: Р-2 V Проектируемое здание гостиницы: 1265 кв.м V Этажность: 3 этажа + подвальное помещение V Технические условия ПОЛУЧЕНЫ: электричество, газ, вода, канализация, радио/ТВ V Выполнены работы: геология, геодезия, топографическая съемка V Согласованы археологические требования с Институтом археологии РАН ПРОЕКТ: Планируется строительство современной гостиницы на 50 номеров в историческом ядре города Владимира. Участок расположен в престижной и удобной локации, рядом с культурными и историческими объектами, что делает его привлекательным для туристического бизнеса. Архитектурное решение здания идеально вписано в существующую историческую застройку, не спорит с ним, а продолжает его ритм, масштаб, настроение. Фасад выполнен в классическом стиле. Проект создан так, чтобы быть естественной часть улицы, а не случайной вставкой. Он подчеркивает облик центра, усиливает восприятие локации как туристически значимой и эстетически ценной. Интерьер гостиницы создан с акцентом на натуральные материалы, мягкий свет, теплую цветовую палитру, изящные детали. Номера оформлены в классическом стиле с комфортной планировкой, продуманной эргономикой и сдержанной элегантностью. Общественные пространства, включая лобби, зону отдыха и кафе поддерживают ту же эстетику. Интерьер, который становится естественным фоном качественного отдыха. ВОЗМОЖНОСТИ: V Готовый инвестиционный проект со всеми необходимыми разрешениями V Выгодная локация в 170 км от Москвы (1:40 на "Ласточке") V Все коммуникации подведены V Подходит под застройку с учетом градостроительных норм Свяжитесь с нами для получения дополнительной информации и просмотра документации Предложение актуально для инвесторов, застройщиков и предпринимателей, желающих развивать бизнес в исторической части Владимира
lock

Войдите или зарегистрируйтесь
для просмотра информации

Просматривайте условия сделки и всю информацию об объекте
Сохраняйте фильтры в поиске и не вводите заново
Доступ к избранному с любого устройства
Неограниченное добавление в избранное
Позвоните автору
Вам ответят на все вопросы
Остались вопросы по объявлению?
Позвоните владельцу объявления и уточните необходимую информацию.
  • Инфраструктура
  • Похожие рядом
Помощь надёжных риелторов
Риелтор партнёр Циан поможет купить или продать любую недвижимость
35 000 000 ₽
471 087 $
395 262
Цена за сотку
8 620 690 ₽
Налог
УСН
Документы проверены
На Циан
8 лет
Объектов в работе
35