Мы используем куки-файлы. Соглашение об использовании
Помещение свободного назначения, 117,9 м²

Сдается помещение свободного назначения, 117,9 м²

Площадь117,9 м²
Этаж2 из 5
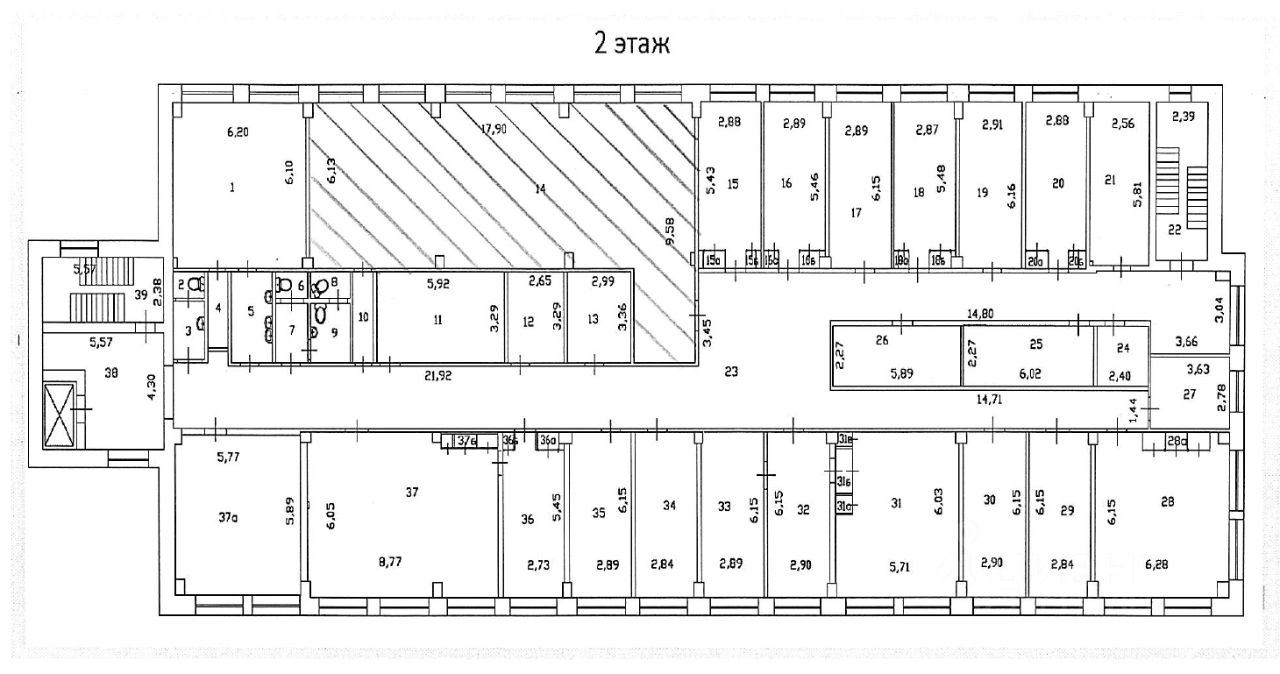
Сдается помещение общей площадью 117,9 кв.м., расположенное на 2 этаже административного здания (на плане помещение 14). Планировка - open space. Высокие потолки. Санузел на этаже. Круглосуточная охрана. Новый лифт. Коммуникации: отопление, водоснабжение, электроснабжение. Центр города, 1 линия домов. Рядом центральная дорога, городская площадь с фонтаном. В окружении развитая инфраструктура: администрация района, кафе, магазины. Высокий пешеходный трафик. Возможна перепланировка по усмотрению Арендатора. Долгосрочная аренда приветствуется. Теплоснабжение и водоснабжение включены в стоимость аренды. Оплата электроэнергии осуществляется по счетчику. Дополнительные возможности (в случае необходимости): -подключение городского телефона, высокоскоростного Интернета, видеонаблюдения; - предоставление юридического адреса. Преимущества: - аренда от собственника ПАО "Ростелеком"; - чистота сделки; - возможность заключения долгосрочного договора. Арендная плата в месяц 35 960 руб.(305 руб./кв.м.) Цена указана с учетом НДС 22%. Звоните, с удовольствием ответим на все вопросы и организуем показ в удобное для вас время.
lock

Войдите или зарегистрируйтесь
для просмотра информации

Просматривайте условия сделки и всю информацию об объекте
Сохраняйте фильтры в поиске и не вводите заново
Доступ к избранному с любого устройства
Неограниченное добавление в избранное
Позвоните автору
Вам ответят на все вопросы
Остались вопросы по объявлению?
Позвоните владельцу объявления и уточните необходимую информацию.
  • Инфраструктура
  • Похожие рядом
  • Общая площадь117,9 м²
Помощь надёжных риелторов
Риелтор партнёр Циан поможет купить или продать любую недвижимость
35 960 ₽/мес.
481 $/мес.
406 /мес.
Цена за метр
3 660 ₽ в год
Налог
НДС включен: 6 485 ₽
Комиссия
100%
Коммунальные платежи
не включены
Эксплуатационные расходы
не включены
Агентство недвижимости
Документы проверены