Мы используем куки-файлы. Соглашение об использовании
Помещение свободного назначения, 33,3 м²

Сдается помещение свободного назначения, 33,3 м²

Площадь33,3 м²
Этаж1 из 1
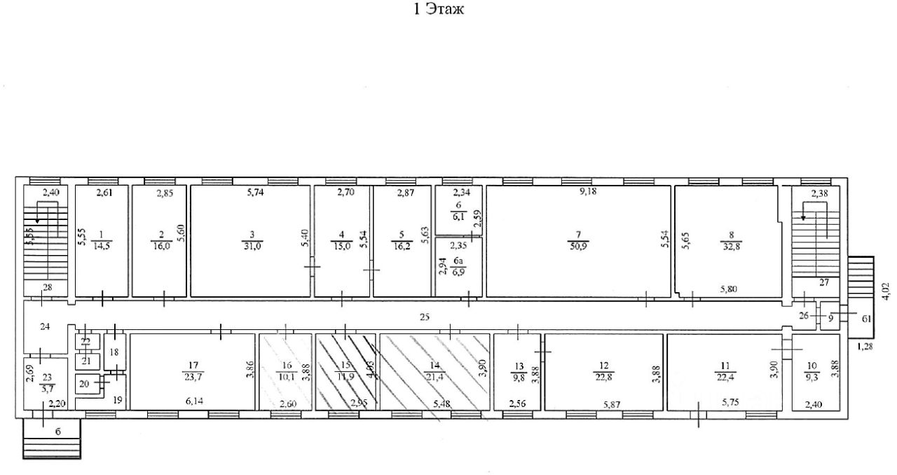
Сдаются помещения в центре города общей площадью 33,3 кв.м. на 1 этаже административного здания. Возможна сдача покабинетно (21,4 кв.м. // 11,9 кв.м.) Планировка кабинетная. Санузел на этаже. Круглосуточная охрана. Рядом улицы Московская, Пролетарская, Советская. В окружении развитая инфраструктура: городская администрация, районный суд, Россельхозбанк, Почта России, школы,музеи и парки, жилая застройка. Высокий пешеходный трафик. Долгосрочная аренда приветствуется. Коммуникации: отопление, водоснабжение, электроснабжение. Теплоснабжение, водопотребление, электроснабжение включены в стоимость аренды. Стоимость аренды 9990 руб. в месяц. Дополнительные возможности (в случае необходимости): - подключение городского телефона, высокоскоростного Интернета, видеонаблюдения; - предоставление юридического адреса. Преимущества: - аренда от собственника ПАО "Ростелеком"; - чистота сделки; - возможность заключения долгосрочного договора. Цена указана с учетом НДС 22%. Звоните, с удовольствием ответим на все вопросы и организуем показ в удобное для вас время.
lock

Войдите или зарегистрируйтесь
для просмотра информации

Просматривайте условия сделки и всю информацию об объекте
Сохраняйте фильтры в поиске и не вводите заново
Доступ к избранному с любого устройства
Неограниченное добавление в избранное
Позвоните автору
Вам ответят на все вопросы
Остались вопросы по объявлению?
Позвоните владельцу объявления и уточните необходимую информацию.
  • Инфраструктура
  • Похожие рядом
  • Общая площадь33,3 м²
Помощь надёжных риелторов
Риелтор партнёр Циан поможет купить или продать любую недвижимость
9 990 ₽/мес.
140 $/мес.
117 /мес.
Цена за метр
3 600 ₽ в год
Налог
НДС включен: 1 799 ₽
Комиссия
100%
Коммунальные платежи
не включены
Эксплуатационные расходы
не включены
Агентство недвижимости
Документы проверены