54 152 ₽/м²
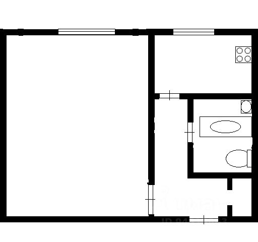
Код объекта: 1715569. Уникальное предложение на рынке недвижимости: просторная трёхкомнатная квартира в живописном посёлке Малыгино, Владимирская область. Этот кирпичный дом 1954 года постройки привлекает своим комфортом и уютом. Квартира расположена на втором этаже и обладает общей площадью 57,8 кв. м, из которых 41,3 кв. м — жилая площадь. Три комнаты (11,3 + 11,6 + 18,4 кв. м) предлагают множество возможностей для обустройства по вашему вкусу. Просторная кухня площадью 8 кв. м станет местом для семейных ужинов и дружеских посиделок. Окна выходят на улицу, а наличие балкона добавляет дополнительное пространство для отдыха. Квартира не угловая, с косметическим ремонтом, что даёт возможность новым владельцам воплотить свои дизайнерские идеи. Совмещённый санузел удобен и функционален. Этот объект идеально подойдёт тем, кто ценит спокойствие загородной жизни, но при этом хочет оставаться в зоне доступности от городской и богатой загородной инфраструктуры. Позвоните нам прямо сейчас, чтобы узнать больше и записаться на просмотр. Мы гарантируем безопасную сделку и юридическую поддержку нашим клиентам. Поможем одобрить ипотеку с сниженной ставкой.















































































