


147 013 ₽/м²
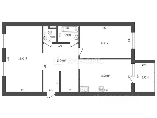
Продается 2-комн. квартира на 9-м этаже в строящемся проекте комфорт-класса Октябрьский. Общая площадь лота составляет 44,69 кв. м, из которых 20,88 кв. м отведено под жилую и 12,27 кв. м под кухонную зону. Номер квартиры - 682. Преимущества квартиры: Вид во двор; прямая остекленная лоджия - Собственная коммерческая инфраструктура и комьюнити-центр для жителей - Безопасность на всех уровнях: закрытый двор, видеонаблюдение и система "Умный Дом" - Безбарьерная среда - Дизайнерские остекленные холлы - Просторные колясочные в каждой секции - Эргономичные квартиры с европланировками - Чистовая отделка квартир в 2 стилях на выбор и с дополнительной опцией покраски стен в 4 трендовых цвета на выбор: агатовый серый, серебристо-серый, серый шелк и тонкий лен. - Пешеходный бульвар, площадь с амфитеатром, велодорожки, спортивные и детские площадки, многоуровневые паркинги и "зеленые" дворы. - Строительство трех современных детских садов на 750 детей и проектирование общеобразовательной школы на 1500 учеников Октябрьский — масштабный проект комфорт-класса во Владимире, который расположился в 2-х минутах от ул. Горького. На территории 40 Га появятся 9 очередей жилого строительства с благоустроенными терриориями и концепцией "Тихий двор". 7,31 Га выделено под озеленение. Октябрьский — это комфортная среда обитания, где каждый сантиметр продуман и логичен. Это единое пространство, в которое входят пешеходный бульвар, площадь с амфитеатром, велодорожки, спортивные и детские площадки, многоуровневые паркинги и "зеленые" дворы. Во дворах есть всё для тренировок на свежем воздухе: велодорожки, турники, брусья, площадки для кроссфита и воркаута с мембранным покрытием для круглогодичных занятий. В коммерческих помещениях первых этажей планируется размещение аптек, магазинов, кафе и сервисных центров, необходимых для комфортной жизни. Октябрьский находится в локации с развитой инфраструктурой и хорошей транспортной доступностью. В шаговой доступности расположены остановки общественного транспорта, 3 детских сада, 3 школы и главный корпус Владимирского государственного университета. Отличительное преимущество проекта Октябрьский — видовые квартиры на верхних этажах. Все помещения сдаются уже с предчистовой отделкой. Вы сможете сразу переехать и начать жить в новом доме. Цена указана при 100% оплате или стандартной ипотеке. Узнайте подробности в Отделе продаж. Продается квартира в Владимире.
























































































































































