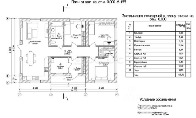
Дом в современном коттеджном поселке Соколиный берег на берегу лесного озера, не имеющий аналогов во Владимирской области. Всего 10 км от города — и вы в окружении природы, с удобной инфраструктурой, охраняемой территорией и комфортной жизнью! • Все инженерные коммуникации Электричество, газ, септик, скважина. Минимальные коммунальные платежи. • Развитая инфраструктура Рядом автобусная остановка, школа, детский садик. • Красивые и современные проекты Все построенные коттеджи имеют продуманные планировки и строятся только из проверенных материалов. Также возможна реализация по индивидуальному проекту. • Природа вокруг Участки располагаются на берегу озера в окружении деревьев, в 1 км до реки Нерль. • Полная безопасность Охраняемая территория, шлагбаум на въезд • Удобные программы и условия покупки Наличные средства; ипотека; материнский капитал; беспроцентная рассрочка от застройщика; сельская ипотека. Общая площадь дома — 105,52 кв. м. Комплектация и материалы: • Фундамент: монолитная железобетонная плита 250 мм • Стеновой комплект: газобетонные блоки 375 мм, D400 • Кровля двускатная: покрытие металлочерепица Grand Line, мембрана супердиффузионная Технониколь • Фасад: штукатурка короед с окраской в 2 слоя, планкен • Окна: ПВХ • Потолки: 3м в черновом варианте • Перегородки: газобетонные блоки 100 мм, D500 • Перекрытие: деревянные балки с утеплением 200 мм минеральной ватой, пароизоляция Планировка (1 этаж): • Кухня-гостиная — 32,06 кв. м • Спальня 1 — 11,01 кв. м • Спальня 2 — 13,31 кв. м • Спальня 3 — 12,38 кв. м • Холл — 10,80 кв. м • Котельная — 5,78 кв. м • Тамбур — 5,49 кв. м • Ванная — 6,39 кв. м • Крыльцо — 5,00 кв. м • Гардеробная — 3,30 кв. м Опции: возможно дополнение проекта гаражом или навесом для автомобиля. Стоимость участка рассчитывается отдельно и зависит от площади и близости к озеру.






















































































